Новости   Библиотека   Ссылки   Карта сайта   О сайте  



предыдущая главасодержаниеследующая глава

2. Строительство новых административно-политических центров (Чандигарх и Бразилиа)

Перенесение правительственных резиденций, как и основание новых столиц, происходило во все эпохи под давлением разнообразных политических, идеологических и экономических причин. Но первым столичным городом в его рафинированной административной форме стал Вашингтон. Начало XX в. ознаменовалось строительством федеральной столицы Австралии - Канберры, которая заменила собою Сидней, середина же текущего века дала два новых столичных центра, а именно Чандигарх и Бразилиа. Поскольку их создавали крупнейшие архитекторы современного мира, пытавшиеся комплексно решать градостроительные проблемы на основе новейших инженерно-технических достижений и художественно-философских воззрений, постольку Чандигарх и Бразилиа заслуживают обстоятельного рассмотрения.

Равнина у подножия Гималаев, на которой возник Чандигарх. Художественно-философское понимание природы послужило основой архитектурного творчества Ле Корбюзье
Равнина у подножия Гималаев, на которой возник Чандигарх. Художественно-философское понимание природы послужило основой архитектурного творчества Ле Корбюзье

В 1951 г. после раздела провинции Пенджаб между Индией и Пакистаном правительство Восточного Пенджаба обратилось к Ле Корбюзье с предложением построить новую провинциальную столицу, которая должна была заменить утраченный Индией древний Лахор. Следует отметить, что это предложение впервые открыло перед Корбюзье увлекательную перспективу реализации его градостроительных концепций, к тому же еще в обстановке далекой азиатской страны со своеобразной национальной художественной культурой. Поэтому, несмотря на свой преклонный возраст, Корбюзье с энтузиазмом взялся за работу, быть может, видя в ней свою лебединую песню. В творческой биографии этого выдающегося мыслителя современного зодчества Чандигарх занял такое же место, как и реконструкция Гавра в творчестве Огюста Перре.

Географическое положение Чандигарха, как и его размеры, были определены самим правительством. Город рассчитывался на 500 тыс. жителей, с первоочередным расселением 150 тыс. человек. Местность, предназначенная для строительства Чандигарха, была выбрана у подножия скалистых отрогов Гималаев. Она представляет собой слегка наклоненное к юго-западу плато, которое прорезают горные потоки, пересыхающие в жаркие летние месяцы.

Джайпур (северная Индия) - один из градостроительных прототипов Чандигарха. Залит черным - дворцовый комплекс, примыкающий к регулярному саду
Джайпур (северная Индия) - один из градостроительных прототипов Чандигарха. Залит черным - дворцовый комплекс, примыкающий к регулярному саду

Спокойный рельеф позволял осуществить здесь любую планировочную систему, но Корбюзье применил прямоугольную сетку улиц, свойственную его ранним планировочным работам. Впрочем, генеральный план Чандигарха не уподобился шахматной доске, так как в противоположность прямолинейным поперечным магистралям, идущим с юго-запада на северо-восток, продольные улицы слегка искривлялись. Городские дороги Чандигарха Корбюзье разделил на семь категорий в соответствии с их направлением и режимом движения. Криволинейная автомобильная магистраль, пересекающая город в продольном направлении, соединяет промышленный район и железнодорожный вокзал с университетским и культурным центром, который располагается на противоположной стороне города. Перпендикулярно к ней проложена главная магистраль. Она обходит по контуру с двух сторон обширный четырехугольный коммерческий центр и направляется к горной цепи, где на особой террасе (уже за пределами города) находится комплекс правительственных зданий, так называемый Капитолий.

Второстепенные улицы делят территорию города на стандартные кварталы (микрорайоны) со сторонами 800 X 1200 м. Если бы Корбюзье на этом и остановился, то город получил бы однообразный решетчатый план, каких так много на всех континентах. Однако, желая создать благоприятные гигиенические условия в микрорайонах, он пропустил широкие ленты зелени сквозь всю территорию города. Среди этих то расходящихся, то сужающихся ленточных парков он размещал амбулатории, школы и другие учреждения. Жилые дома, по замыслу Корбюзье, обращались своими входами к ленточным паркам, тогда как противоположные фасады, лишенные дверей, выходили на транспортные магистрали. Для крупнейшего ленточного парка Чандигарха Корбюзье использовал долину ручья, берущего свое начало у площадки Капитолия. Если к упомянутому прибавить пешеходные торговые улицы, образующие собственную сеть, то составится полное представление о генеральном плане новой столицы Пенджаба.

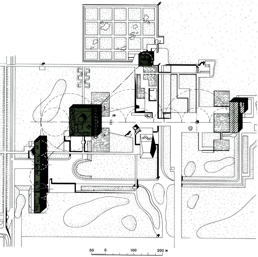
Чандигарх - новая столица Пенджаба. Спроектирована Ле Корбюзье в начале 1950-х годов в расчете на расселение 500 тыс. жителей. Продольная автомобильная магистраль соединяет промышленный район и вокзал с загородным университетским комплексом. Перпендикулярный главный проспект ведет от коммерческого центра к Капитолию
Чандигарх - новая столица Пенджаба. Спроектирована Ле Корбюзье в начале 1950-х годов в расчете на расселение 500 тыс. жителей. Продольная автомобильная магистраль соединяет промышленный район и вокзал с загородным университетским комплексом. Перпендикулярный главный проспект ведет от коммерческого центра к Капитолию

Закончив планировку города, Корбюзье предоставил другим архитекторам заниматься рядовой городской застройкой и сосредоточил все свои творческие силы на создании Капитолия. Постараемся осветить три главные проблемы, которые пытался решить Корбюзье, это: 1 - проблему национального образа новой столицы; 2 - проблему связи города с природой и 3 - проблему достижения художественного единства. Без сомнения, Корбюзье хорошо понимал, что современная архитектура Европы и Америки оказалась бы чуждой национальному миропониманию индийского народа. И вместе с тем он не мог допустить прямого возрождения тех или иных исторических стилей Индии. И, следовательно, ему оставалось избрать некий промежуточный путь, который без компромиссов и эклектики привел бы его к гармоническому сочетанию старого и нового, национального и международного. В творческой биографии Корбюзье 50-е годы были временем смелых исканий, когда он настойчиво работал над обогащением художественного языка современного зодчества, оказавшегося неспособным выражать глубокие философские понятия, как и духовные переживания человека. Монументальность, пластичность, символика и синтез искусств - все это, ранее казавшееся Корбюзье почти несущественным, теперь превратилось в основное оружие мастера. Но помимо этих художественных средств в Чандигархе сказалось и творческое освоение архитектурного наследия. Первое, что воспринял Корбюзье из арсенала старого индийского градостроительного искусства, заключалось в грандиозных иллюзорных и реальных размерах ансамблей. На территории Джайпура, служившего некогда столицей небольшого индийского княжества, могло бы уложиться несколько второстепенных великогерцогских столиц Центральной Европы. Гробница Джехангира, находящаяся по соседству с Лахором, занимает вместе с окружающим садом квадратный участок 25 га, и даже индийские деревни, помещенные в трактате Манасара (Древнесанскритский трактат Манасара под названием "Сильпа-Шастра", вероятно, относится к VI-VII вв. н. э. В нем сведены воедино все действовавшие тогда строительные правила и нормы. (Manasara. On architecture and sculpture. Edited Prasana Kumar Acharya; London, New York, Bombey, 1933)), не уступают в размерах средневековым европейским городам. На площадке чандигархского Капитолия возводили только четыре здания, для размещения которых нужен был лишь очень небольшой клочок земли. А между тем Корбюзье отвел для Капитолия огромный квадрат со сторонами 800 X 800 м. Самое совпадение размеров кварталов, из которых слагается план Джайпура с четырехугольными микрорайонами Чандигарха, указывает на прямую преемственность в размерах. Еще более приближается к индийским прототипам четырехугольный сад губернатора, где аллеи разбивают участок на равные квадраты, а границей является сплошная стена.

Ансамбль Чандигархского Капитолия. На перспективе отчетливо видна вертикальная планировка территории с искусственными холмами, дорогами и водоемами. На первом плане здание Секретариата. Далее по диагонали - дворец Ассамблеи и за ним резиденция губернатора (в настоящее время - музей). На краю платформы по оси Ассамблеи - здание Верховного суда; левее его - символическая скульптура 'Открытая рука'
Ансамбль Чандигархского Капитолия. На перспективе отчетливо видна вертикальная планировка территории с искусственными холмами, дорогами и водоемами. На первом плане здание Секретариата. Далее по диагонали - дворец Ассамблеи и за ним резиденция губернатора (в настоящее время - музей). На краю платформы по оси Ассамблеи - здание Верховного суда; левее его - символическая скульптура 'Открытая рука'

Столь же традиционным для Индии (как и для очень многих столичных городов Востока) было периферийное размещение резиденции государственной власти. Капитолий Чандигарха выступает за пределы города так же, как выдвигается в Дур-Шаррукине (Хорсабаде) дворец Саргона II или поражающая воображение твердыня Тибета - дворец Далайламы в Лхасе. Во всех перечисленных случаях столицы как бы простираются у ступеней духовного и светского престолов.

Особую, если не решающую роль в архитектуре чандигархского Капитолия сыграло пластическое начало, то хорошо ощущаемое скульптурное качество архитектурных форм, которое придает им телесность и живость, свойственные формам органического мира. Откуда пришло к Корбюзье столь определенное пластическое мышление? Было ли оно естественным этапом в развитии его удивительного дарования или понимание пластики он почерпнул из национальной индийской архитектуры? Все стили Индии (включая даже самый богатый и декоративный орисский стиль) обладают исключительной пластической выразительностью. Кажется, что пагоды, гопурамы и ступа не строили (т. е. складывали из отдельных камней), а высекали из целой скалы или даже лепили из податливого для руки материала. То же впечатление производят и лучшие сооружения Чандигарха. Ведь даже самую площадку Капитолия с ее ступенями и впадинами, искусственными водоемами и насыпными холмами, по сути дела, вылепил на месте сам Корбюзье.

Здесь мы вплотную подошли к вопросу о взаимодействии архитектурных объемов с их горизонтальной субструкцией - землей. Характеризуя здания на столбах, духовным отцом которых был Корбюзье, профессор Желлико отметил, что они контрастно входят в природу, подобно белоснежным чайкам, опустившимся на луг. Но почему же в таком случае Корбюзье отказался от своих излюбленных свободно стоящих опор, от зданий без нижнего этажа? Или природа Индии требовала этого, или ее национальная художественная традиция заставляла "выращивать" здания из самой земли? Убедительно, конечно, не первое, а второе, ибо на тех же географических широтах, а именно в южной Японии и Алжире, Корбюзье с успехом применял постройки на столбах и, следовательно, только настоятельное желание создать монументальную форму и заставило его, как и в композиции капеллы Роншан, начинать строения с наземного этажа.

Итак, реальные размеры и масштабность, периферическое расположение главного ансамбля, пластическое толкование архитектурных форм и, наконец, неразрывная связь всех зданий с поверхностью земли - вот, что воспринял Корбюзье от национального индийского градостроительного искусства. Но все это далеко отстояло от непосредственного применения старых стилистических форм и деталей. Больше того, к пониманию национальных форм индийского зодчества Корбюзье подошел от природы, т. е. от того великого первопричинного фактора, который в значительной степени предопределил и все последовательно сменявшиеся стили Индии. Жарким климатом объяснялись огромные навесы над фасадами, обращенными к солнцу (как и глубокие ниши окон и ребристые жалюзи), и нужно было лишь облагородить их красивыми профилями, чтобы приблизить к национальным архитектурным формам северной Индии. Конечно, это мог сделать только настоящий художник, каким и был Корбюзье.

Говоря о Капитолии как о большом ансамбле, возглавляющем город, нельзя не коснуться его художественных связей с внешним природным ландшафтом. Природа, окружающая Чандигарх, обладает разительными контрастами уже в силу того, что здесь заканчивается горная Индия и начинается безбрежная Индийская равнина. С севера, за Капитолием, тянется горный хребет, изъеденный глубокими ущельями. Остроконечные скалы служат для Капитолия фоном, своеобразной театральной декорацией. И вот, как бы обращаясь к стране от имени горного мира, Корбюзье направил архитектурную энергию Чандигарха к обширной Индийской равнине, куда несут свои воды многочисленные притоки Инда и Ганга. Ленточные парки Чандигарха без всякой натяжки повторяют гидрографию индийских рек, тогда как кривящиеся продольные магистрали, геометрический центр которых находится где-то далеко в Гималаях, отдают композиционную дань этим последним. Ясно понимая то, что называют "гением места", Корбюзье воздержался от применения архитектурных вертикалей, ибо их роль приняли на себя несравненно более грандиозные горные пики.

Чандигарх. Анализ генерального плана Капитолия. В основу композиции положены следующие принципы: 1) классическое размещение зданий по диагонали; 2) равновесие, а не примитивная симметрия; 3) модульная соразмерность объемов и пространств; 4) масштабное посредничество символической скульптуры между человеком и архитектурными объемами
Чандигарх. Анализ генерального плана Капитолия. В основу композиции положены следующие принципы: 1) классическое размещение зданий по диагонали; 2) равновесие, а не примитивная симметрия; 3) модульная соразмерность объемов и пространств; 4) масштабное посредничество символической скульптуры между человеком и архитектурными объемами

На площадке Капитолия стоят: Секретариат (очень длинный многоэтажный корпус), квадратное здание Ассамблеи, сравнительно небольшой Дворец губернатора (теперь превращенный в музей) и корпус Верховного суда. Первые три расположены слева от главной магистрали, вливающейся в Капитолий, последнее же - справа, на значительном расстоянии от предыдущих. Символическая "Открытая рука" и "Могила мученика", первой жертвы строительства столицы, дополняют эти здания скульптурными формами. Сразу же обращает на себя внимание диагональное размещение зданий и изысканность интервалов между ними. План Капитолия очень красив. Но чем было вызвано косоугольное направление, совсем не свойственное Корбюзье и чуждое симметричным планам индийских храмов и городов? Диагональ впервые применили строители Великих пирамид, однако в древнем Египте она не получила сакрального значения. Естественно, что Корбюзье, далекий от мистического миропонимания, использовал ее лишь в композиционных и оптических целях. Чтобы парализовать чрезмерное количественное превосходство здания Секретариата, он отдалил его от главной магистрали и в то же время обратил торцом по отношению к городу. Поэтому, когда зритель вступает в Капитолий, его внимание привлекает не первое, а второе здание, т. е. Ассамблея, видимая с наиболее выгодной угловой точки зрения. Так, следуя за эстафетой, переходящей от одного объема к другому, можно пересечь весь Капитолий, не испытав разочарования от незначительности одних сооружений и подавляющего превосходства других. А это и было достигнуто при помощи диагонального размещения зданий.

Здание Ассамблеи в Чандигархе. Разрез и план
Здание Ассамблеи в Чандигархе. Разрез и план

Значение интервалов между архитектурными объемами так же велико, как и продолжительность пауз между музыкальными аккордами. У Корбюзье все паузы оказались равными (около 340 м), но несколько меньшими по размерам, чем на площадке Великих пирамид. Впрочем сходство с этим древним ансамблем не дает основания говорить о заимствовании диагонального приема из Египта, тем более что он получил широкое распространение и в Европе.

Наиболее впечатляющим зданием Капитолия является корпус Верховного суда. Образующая тень железобетонная крыша с просветами под ней напоминает монументальную аркаду эпохи Моголов. Пилонообразные выступы по сторонам и, наконец, расширяющийся снизу вверх поперечный профиль здания, как будто сделанного из пчелиных сот, обладает такой поразительной силой, какую человечество еще не видало со времени древних восточных деспотий. И вместе с тем это здание не является хоть сколько-нибудь архаическим.

Здание Ассамблеи в Чандигархе. Главный вход. В тяжеловесной изогнутой крыше и в редко стоящих опорах Корбюзье нашел обобщающий архитектурный образ, свойственный сооружениям северной Индии
Здание Ассамблеи в Чандигархе. Главный вход. В тяжеловесной изогнутой крыше и в редко стоящих опорах Корбюзье нашел обобщающий архитектурный образ, свойственный сооружениям северной Индии

Но в противоположность зданию Верховного суда зал заседаний Ассамблеи нельзя считать достижением Корбюзье. Занимаясь изучением освещения больших аудиторий, Корбюзье установил, что однополостный гиперболоид обладает наибольшими преимуществами. Однако самая форма его оказалась крайне неудачной. Если градирни, имеющие аналогичную форму, производят удовлетворительное впечатление в составе промышленных комплексов, то это объясняется их обособленным размещением. Вместе с тем гиперболоид не дает представления о вместилище людей, поскольку его внутреннее пространство имеет чрезмерное вертикальное развитие. Поэтому вставленный в коробку общественного здания (да еще не в целом, а в усеченном виде) гиперболоид Корбюзье вызвал непримиримый композиционный конфликт. Не следует забывать, что художественный образ здания вытекает из его функционального назначения и определяется прежде всего принадлежностью к одной из трех больших разделов архитектуры, а именно - жилой, общественной и промышленной. Каждая из них имеет свою особенность в художественно-образном мышлении, в силу чего произвольное перенесение специфических форм из одной архитектурной области в другую может поставить любого зодчего перед неразрешимой задачей. Строительство Капитолия, как и самого Чандигарха, полностью не закончено. Трагическая гибель Корбюзье лишила столицу Пенджаба ее творца и заботливого покровителя, а, кроме того, и само развитие города далеко не оправдало возлагавшихся на него надежд. В настоящее время Чандигарх - это город контрастов. Монументальному Капитолию не соответствуют зияющие пустыри среди начатых, но еще недостроенных жилых районов. На хорошо замощенных скоростных магистралях лишь в редких случаях появляются автомобили, идущие из Дели и Агры, а чаще всего бредут по ним медлительные волы и верблюды. Велосипед здесь - вершина местной транспортной техники. В городе не хватает школ, в силу чего дети занимаются под открытым небом, недостает и жилых домов.

Вид из здания Верховного суда на Ассамблею. В понимании пластики архитектурных форм Корбюзье достиг высочайшего артистизма
Вид из здания Верховного суда на Ассамблею. В понимании пластики архитектурных форм Корбюзье достиг высочайшего артистизма

Чандигарх переживает тот первоначальный тяжелый период, который пережили многие другие города-новостройки. Крестьянам, покинувшим свои родные деревни, приходится только ждать, когда освободившаяся от колониального гнета великая Индия сможет удовлетворить их самые насущные жилищно-бытовые потребности. Но Капитолий, символизирующий достоинство и могущество государства, уже стоит. Он внушает веру в грядущее лучшее будущее. И остается неясным только одно - насколько то, что создал Корбюзье в Чандигархе, понятно и близко индийскому народу. Четырьмя годами позже основания Чандигарха началось строительство новой бразильской столицы, идея создания которой зародилась еще в 1789 г. под впечатлением Великой французской революции. Отрицательно относясь к Рио-де-Жанейро, как к цитадели португальского колониального режима, борцы за свободу Бразилии уже тогда призывали к перенесению столицы во внутренние области страны. После падения империи (а именно в 1891 г.) учредительное собрание подтвердило это намерение в тексте республиканской конституции, но лишь в 1955 г. был выделен федеральный район, на территории которого и расположили столицу.

Местность, где возникла Бразилиа, находится в степной полосе штата Гояс на безразличной плоской равнине. Здесь нет ни величия гималайского пейзажа, ни жизнерадостной живописности Атлантического побережья Южной Америки, а там, где природа безмолвствует, там должен действовать человек, используя все подвластные ему созидательные силы. Так произошло и при освоении этого отдаленного знойного и безводного района саванны. Запрудив сливающиеся в этом месте ручьи, строители получили разветвленное водное зеркало, напоминающее латинскую букву Y. В образовавшийся полуостров и начали вписывать новую столицу, предварительно подтянув к ней железнодорожную ветку (Новая столица находится на расстоянии в 940 км к северо-западу от Рио-де-Жанейро).

Ле Корбюзье. Символическая скульптурно-архитектурная композиция 'Открытая рука'. Углубление предназначалось для небольших собраний и размышлений среди природы на фоне Гималайских гор
Ле Корбюзье. Символическая скульптурно-архитектурная композиция 'Открытая рука'. Углубление предназначалось для небольших собраний и размышлений среди природы на фоне Гималайских гор

Бразилиа, как в свое время и Вашингтон, создавалась в качестве специального административного центра. Поэтому индустриального и торгового значения она не получила. Город предназначался только для чиновников и сановников государственного аппарата. Но поскольку государственно-монополистический капитализм способствовал расширению бюрократических органов управления, постольку и столица республики получилась большой. Население города определили в 500 тыс. человек, не ограничивая его в территориальных размерах.

В середине 50-х годов был проведен конкурс на планировку новой столицы, в котором приняли участие лучшие архитекторы страны. Победителем из конкурса вышел Лусио Коста. К нему присоединился впоследствии Оскар Нимейер, занявшийся проектированием и строительством общественных зданий. Однако самое разобщение единого и неделимого процесса создания города на два срока и между двумя авторами не могло не привести к отрицательным результатам, ибо утвержденный генеральный план ставил Нимейера в положение исполнителя трудно изменяемых планировочных замыслов. Но какие задачи стояли перед Нимейером и Коста?

Строители новой столицы Бразилии - Оскар Нимейер и Лусио Коста
Строители новой столицы Бразилии - Оскар Нимейер и Лусио Коста

Если бы мы начали рассмотрение Бразилиа с описания функциональной стороны ее планировки, мы отодвинули бы на второе место ту главную и первоочередную проблему, которая предопределила архитектурную композицию этого города. В отличие от Чандигарха и других городов со смешанным функциональным назначением Бразилиа строилась как резиденция правительства и магнатов финансового капитала, для которых услужливо предоставили большой специальный район. А раз это было так, то поиски художественного образа столичного города становились для Коста и Нимейера исходной творческой позицией. История градостроительства показывает, что лучшие столичные города всегда выражают целый комплекс социальных и политических представлений. В первую очередь в них воплощаются суверенное достоинство государства, его незыблемость, могущество и принадлежность к национальной субстанции данной страны. При переводе на архитектурный язык эти политические идеи превращаются в монументальность, обширность размеров и единодушие художественного замысла, который принимает те или иные национальные и местные формы. Любая из существующих столиц, начиная с Парижа и Рима и кончая Вашингтоном, Прагой и Москвой, имеет те же, по-своему воплощенные архитектурно-планировочные черты, и можно с уверенностью полагать, что жюри присудило первую премию Лусио Коста именно за то, что он более всех своих конкурентов приблизился к образу столичного города.

Бразилиа. Генеральный план города (население по проекту 500 тыс. жителей): А-А - главная западно-восточная ось, на которой расположены здания государственного и общественного назначения; Б-Б - ось городского расселения; 1 - площадь Трех властей; 2 - эспланада со зданиями министерств; 3 - коммерческий центр; 4 - здание радиовещания и телевидения; 5 - лесопарк; 6 - железнодорожный вокзал; 7 - жилая многоэтажная застройка; 8 - коттеджная застройка; 9 - посольства; 10 - водные спортивные устройства
Бразилиа. Генеральный план города (население по проекту 500 тыс. жителей): А-А - главная западно-восточная ось, на которой расположены здания государственного и общественного назначения; Б-Б - ось городского расселения; 1 - площадь Трех властей; 2 - эспланада со зданиями министерств; 3 - коммерческий центр; 4 - здание радиовещания и телевидения; 5 - лесопарк; 6 - железнодорожный вокзал; 7 - жилая многоэтажная застройка; 8 - коттеджная застройка; 9 - посольства; 10 - водные спортивные устройства

Идея генерального плана новой столицы была чрезвычайно простой. На клинообразном полуострове Коста проложил две взаимно перпендикулярные планировочные оси. На первую (западно-восточную ось) он нанизал общественные здания, вторую же, предназначенную для расселения, слегка изогнул, что придало генеральному плану столицы форму самолета или парящей гигантской птицы. "Бразилиа взовьется над Америкой", - так говорили местные патриоты в период обсуждения проекта. Таким образом, уже в самый планировочный замысел неожиданно проникла несвойственная зодчеству изобразительная символика. Как мы увидим дальше, она и послужила причиной всех неудач в строительстве этой столицы.

Продольный разрез по главным правительственным зданиям Бразилиа
Продольный разрез по главным правительственным зданиям Бразилиа

Автору проекта планировки, вероятно, казалось, что он создал надежные предпосылки для формирования художественного образа столицы, поскольку симметрия отвечает общечеловеческим представлениям об устойчивости, а следовательно, и вечности существующего порядка вещей, тогда как колоссальность размеров столицы автоматически выражает и мощь, и обширность страны. Однако это было далеко не так. Ведь зеркальная симметрия отнюдь не единственное и тем более оптимальное средство для достижения устойчивого зрительного равновесия, в то время как тенденция к сверхколоссальности нередко приводит к отрицательным результатам и вместе с тем импонирует только грубому вкусу. Абсолютными размерами своих проспектов Бразилиа перекрыла решительно все классические образцы. Так, главная ось ее тянется на 10 км, что превосходит центральный партер Вашингтона в 3 раза, а парижский проспект Елисейских полей в 5 раз. Еще Зитте убедительно показал, что в городской планировке играют решающую роль не абсолютные, а относительные (иллюзорные) размеры, воздействующие на зрителя через посредство масштабности. Но генеральный план Бразилиа немасштабен. Трудно представить себе реальные размеры этого города и особенно его монотонно спланированного жилого района. На 13,5 км тянутся здесь, как бы отчеканенные механическим способом, равновеликие жилые дома и кварталы. Ни одной площади, ни одной вертикали не попадается на пути, за исключением главного перекрестка, откуда на короткое время открывается вид на пустынный центральный партер.

Бразилиа. Общий вид правительственного центра от перекрестка с главной городской магистралью и приближенной точки зрения. Обращает на себя внимание диспропорция между архитектурными объемами и необъятными пространствами партеров
Бразилиа. Общий вид правительственного центра от перекрестка с главной городской магистралью и приближенной точки зрения. Обращает на себя внимание диспропорция между архитектурными объемами и необъятными пространствами партеров

К этому необходимо добавить и крайне неудачное расположение культовых зданий. Несмотря на то что с провозглашением республики церковь была отделена от государства, клерикалы-католики не хотели выпустить новую столицу из своих цепких рук. Поэтому Лусио Коста предусмотрел постройку 25 церковных зданий во главе с грандиозным кафедральным собором. Однако, вопреки установившейся традиции, он вынес церкви за пределы города, расставив их как цепь часовых с обеих сторон протяженной жилой полосы.

Бразилиа. Общий вид правительственного центра от перекрестка с главной городской магистралью и приближенной точки зрения. Обращает на себя внимание диспропорция между архитектурными объемами и необъятными пространствами партеров
Бразилиа. Общий вид правительственного центра от перекрестка с главной городской магистралью и приближенной точки зрения. Обращает на себя внимание диспропорция между архитектурными объемами и необъятными пространствами партеров

Загородное размещение церквей встречалось и в прошлом. Конечно, Лусио Коста мечтал о создании эффектных фасадов большой католической столицы, но на деле получилось нечто прямо противоположное, так как приходские церкви разместились на фоне стандартной застройки, способной ликвидировать всякую поэтичность, не говоря уже о том, что чрезмерное сближение церковных здании, ничем не отделенных одно от другого, ставило архитекторов перед сложнейшей композиционной задачей.

План площади Трех властей: 1 - Палата депутатов; 2 - Сенат; 3 - административный корпус; 4 - Верховный суд; 5 - дворец президента; 6 - место для прогулок. Анализ показывает, что авторы пропорционировали центральный ансамбль. Однако отвлеченность архитектурных объемов обесплодила их творческие усилия
План площади Трех властей: 1 - Палата депутатов; 2 - Сенат; 3 - административный корпус; 4 - Верховный суд; 5 - дворец президента; 6 - место для прогулок. Анализ показывает, что авторы пропорционировали центральный ансамбль. Однако отвлеченность архитектурных объемов обесплодила их творческие усилия

Генеральный план Бразилиа имеет множество функциональных недостатков. Как и следовало ожидать, линейная схема города оказалась экономически нерентабельной. Столь же неоправданным было измельчение основной планировочной ткани, т. е. жилых кварталов. Ведь на стандартных участках со сторонами 240 X 240 м могли разместиться только некоторые элементы культурно-бытового обслуживания, а именно детский сад и начальная школа с рядовым магазином и сравнительно небольшой площадкой для игр. А при таком положении отпадала внутриквартальная тенистая зелень, столь необходимая в городах тропического пояса. Деревья в Бразилиа насаживались по шнуру вдоль улицы на открытых газонах, причем изоляция школ от автомобильного движения не гарантировалась хорошо продуманными градостроительными мерами. Но особенно много потеряла столица на своих чрезмерно растянутых коммуникациях. Так, например, жители северного предместья, работающие в железнодорожном депо или лабораториях атомной физики, ежедневно преодолевают в поездах туда и обратно до 50 км, а если к этому присоединить вечернее посещение яхт-клуба или поля для игры в гольф, то длина дневного пути возрастет до 70-80 км, а это является рекордным даже для таких безмерно разросшихся городов, как Лондон, Нью-Йорк и Париж. Уже изложенного достаточно для того, чтобы оценить планировку Бразилиа как весьма далекую от совершенства. Но еще больше художественных и технических парадоксов преподнес республиканской столице Оскар Нимейер.

Главный подъезд к правительственному центру Бразилиа
Главный подъезд к правительственному центру Бразилиа

Со времени завершения работ над центральным ансамблем Бразилиа не имеет конкурентов в ошеломляющем воздействии архитектурных форм. О Бразилиа писали самые выдающиеся теоретики и критики современной буржуазной архитектуры в лице Бруно Дзеви, Франка Арнау и Зигфрида Гидиона (Giedion Sigfrid. Stadtform und die Grtindung von Brasilien. - Bauen und Wohnen. 1960, № 8, s. 291-296; Arnau Frank. Brasilien. Miinchen, 1960). Бразилиа посещали архитекторы, инженеры, художники, писатели и ни с чем не сравнимое количество туристов. Всем было ясно, что Нимейером создан еще не виданный образ грядущего города, какой могла допустить урбанистическая фантастика лишь на иных планетах. Но как отнестись к нему, приемлем он или нет? И какие социальные и политические идеи он выражает? Собственно, нам необходимо рассмотреть (точнее расшифровать) только один объект - комплекс высших правительственных зданий, находящихся у восточной оконечности большой "монументальной" оси Бразилиа.

Бразилиа. Вид с террасы на Палату депутатов и купольный зал Сената
Бразилиа. Вид с террасы на Палату депутатов и купольный зал Сената

Монументальная ось начинается треугольной площадью Трех властей (т. е. законодательной, исполнительной и судебной). Справа и слева здесь стоят невысокие дворцы Президента и Верховного суда; далее (уже в суженных рамках двух симметричных автомобильных дорог) находятся форум, искусственный водоем, а еще дальше - раздвоенная административная вертикаль и низкое здание Конгресса. Двухпалатная система верховной власти дала основание Нимейеру выразить ее в двух объемах - в выступающем над крышей Конгресса куполе Сената и в пологой "чаше" Палаты представителей. Этим и ограничивается функциональная логика композиции, так как раздвоенная башня для чиновников государственного аппарата (т. е. само по себе второстепенное здание) не находит оправдания ни в центральном местоположении, ни тем более в преобладающей высоте.

Глядя на центральный ансамбль, поддаешься эстетическому обаянию чистых и звучных форм. Широкая чаша так артистически прорисована (вернее, изваяна), ее контуры так спокойны и нежны, а контраст с раздвоенной башней настолько внушителен и могуч, что убеждаешься в большой одаренности Оскара Нимейера. Но вместе с тем возникает и множество недоуменных вопросов: почему, например, архитектор увлекся абстрактными формами? Как решил он проблему масштабности? И что в этих странных объемах выражает национальный дух бразильского народа? Выше уже говорилось, что принадлежность столицы стране, проявляемая в бесконечном количестве самых разнообразных национальных связей, является непременным условием как для города, так и для главного здания. Корбюзье затратил немало усилий, чтобы выразить эти черты в Чандигархе. Однако Нимейер остался равнодушным к национальной намагниченности столицы. А между тем бразильский народ обладает своей вполне определенной национальной архитектурой. Оперируя простейшими геометрическими телами, архитектор всегда стремится к тому, чтобы сделать здание соизмеримым с человеком, а следовательно, и масштабным с теми или иными иллюзорными поправками. Большое значение имеет здесь самый перевод проекта из чертежа и макета в натуральные конструкции и размеры. Поэтому глубокий и тонкий художник зодчества всегда дополняет свой проект в процессе его осуществления теми или иными, иногда едва заметными деталями. Однако, как справедливо говорит об этом Дзеви, постройки Нимейера "не отступают ни на шаг от чертежа и картонной модели...", они не совершенствуются в натуре, "так как страсть проектировать не сопровождается у него страстью строить" (Цитируемая характеристика творчества Нимейера помещена в редакционной статье итальянского журнала L'Architettura, 1950, gennaio, с. 616). Вот почему ансамбль главных зданий Бразилиа выглядит столь абстрактно, производя впечатление макета, увеличенного во много раз.

Эти крупные недостатки проекта Нимейера объяснялись в первую очередь самим направлением современной буржуазной архитектуры - ее космополитической сущностью и формализмом. Ко времени, когда прямой учитель Нимейера - Корбюзье начал свои экспериментальные работы в Вогезах (капелла Роншан) и Чандигархе, стилистический кризис функциональной архитектуры уже находился в разгаре. Но ученик воспринял творческие поиски своего гениального учителя как отход от функциональной и конструктивной логики в сторону свободного формотворчества, вплоть до создания иррациональных вещей. Благодаря достижениям инженерно-строительной техники становились выполнимыми любые самые фантастические замыслы архитектора. И вот началось ничем не ограниченное формотворчество. Вместо того чтобы создать нормальный зал заседаний парламента, Оскар Нимейер строит на крыше дворца непонятную плоскую чашу; огромный кафедральный собор он заменяет ничего не несущим каркасом, тогда как самую церковь превращает в полуподземный храм.

Кафедральный собор в Бразилиа. Макет. Автор Оскар Нимейер. На первом плане (справа) - заглубленный в землю вход в собор. Левее выступает из земли сферическая крыша подземного баптистерия. Высота храма 40 м при диаметре 70 м. Промежутки между параболическими ребрами заполнены стеклом, смягчающим воздействие тропического солнца
Кафедральный собор в Бразилиа. Макет. Автор Оскар Нимейер. На первом плане (справа) - заглубленный в землю вход в собор. Левее выступает из земли сферическая крыша подземного баптистерия. Высота храма 40 м при диаметре 70 м. Промежутки между параболическими ребрами заполнены стеклом, смягчающим воздействие тропического солнца

И все же, несмотря на формализм и абстрактность архитектурных форм, ансамбль Нимейера имеет художественный образ, а с некоторых, не слишком отдаленных точек зрения, он производит даже сильное эстетическое впечатление. О чем же повествуют бетонные формы Конгресса? О суровой государственности, силе и власти. В. И. Ленин определял буржуазное государство как аппарат насилия ничтожной кучки людей над многомиллионными трудящимися массами (Ленин В. И. Полн. собр. соч., т. 33, с. 1-120). Именно эту идею и выражает произведение Оскара Нимейера. Во всяком случае мистический характер центрального ансамбля и особенно его раздвоенной, как бы устрашающей башни соответствует политическим устремлениям современных буржуазных диктатур. Строительство бразильской столицы в первые годы после основания города происходило быстрыми темпами. 21 апреля 1960 г. вместе с переездом президента и правительства, она фактически стала главным городом Соединенных Штатов Бразилии. Но тем не менее, по свидетельству многочисленных иностранцев, благоустройство города сильно отставало от намеченных планов. Побывавший в Бразилиа английский архитектор Джордж Бэлкомб отметил трудности заселения новой столицы, происходящие по той причине, что "город еще недостаточно элегантен для богатых и недостаточно дешев для того, чтобы в нем жили бедные" (Из беседы о Бразилиа, опубликованной в ноябрьском номере Journal of the Royal Institute of British Architects, 1961, november).

Будучи паразитическим центром в своем существе, Бразилиа и теперь существует за счет государства. На окраинах ее все еще сохраняются громадные скопления бараков, в которых обитают непосредственные создатели репрезентативной столицы. А по соседству с бараками неудержимо растут трущобные кварталы бедноты - этот неизбежный спутник всех капиталистических городов.

предыдущая главасодержаниеследующая глава

Комплектация.ру - стропы канатные двухветвевые http://komplektacya.ru/gruzopodjemnoe-oborudovanie/stropy-gruzovye/stalnye/2sk/strop-2sk








© TOWNEVOLUTION.RU, 2001-2021
При копировании обязательна установка активной ссылки:
http://townevolution.ru/ 'История архитектуры и градостоительства'

Рейтинг@Mail.ru

Поможем с курсовой, контрольной, дипломной
1500+ квалифицированных специалистов готовы вам помочь